Luxury estate, 180° sea view, heated infinity pool, sleeps 9 | Villa in Théoule-Sur-Mer

5 Bedroom Villa in Theoule-Superieur, Théoule-Sur-Mer
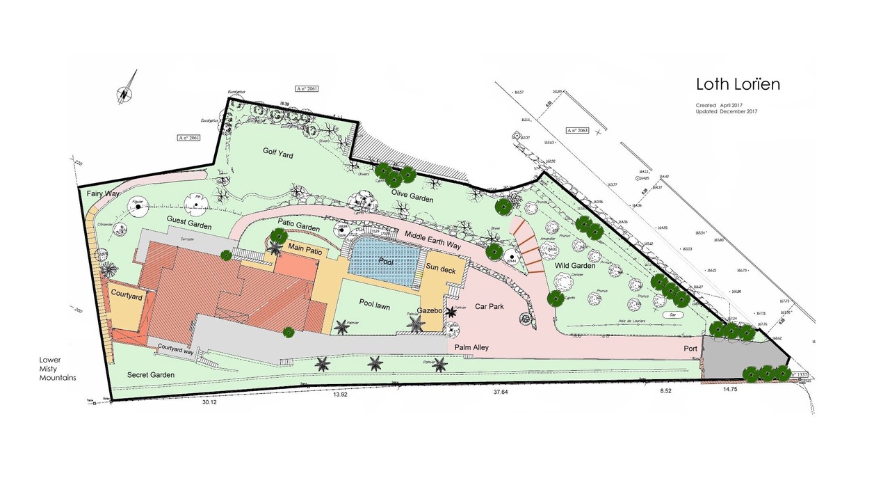
Built at the top of the hill above the port of Théoule-sur-Mer, this stunning villa enjoys a spectacular view over the bay of Cannes, where an array of white sailing boats and yachts stand out against the intense blue color of the sea.
Loth Lorien is a very special place in Tolkin's Lord of the Ring trilogy - and so is this villa.
AMAZING OUTDOORS
The huge 3,000 sqm plot with its amazing sea views hosts an extra large heated infinity pool with electric cover and a jet stream to swim against. The outdoor gazebo, outdoor summer kitchen, a putting green for Golf lovers, the olive garden, and lots of little corners to hide and relax make it stand out from pretty much any place on the French Riviera.
BEAUTIFUL INDOORS
The 300 sqm villa has a large living/dining space with a fireplace and large double-pane window doors that can be completely opened. A large and fully equipped gourmet kitchen with a sea view, two coffee machines, a large fridge with an ice maker, and countless kitchen gear including Salamander, Microwave, Kitchen-Aid, Mixer, Blender, and much more is just right for gourmet lovers. The villa sleeps 9 in five bedrooms.
BEDROOM SITUATION
- On the main floor, is the master bedroom with a master bath.
- The library can be turned into an additional bedroom that sleeps one on a full-size box-spring bed and shares the master bath. 90x200cm
- On the lower level garden floor, are three bedrooms with en-suite bathrooms. Each of these bedroom are also equipped with box-spring double beds 180x200 cm.
- The TV/home theater or playroom can be used as a bedroom for kids as an extended room to the third bedroom or as a fourth bedroom. If used as a fourth garden-level bedroom, the two rooms need to share one bathroom.
PARKING
A three-car parking lot is inside the property. The parking lot is situated between the steel gate and the house on a beautiful 100-meter-long entry path. Another car can be parked in front of the villa. No need to park outside. Guests can still park in the entryway outside the gate.
All in all - It's a magical place in a timeless space.
Luxury estate, 180° sea view, heated infinity pool, sleeps 9 is located in Theoule-Superieur. Luxury estate, 180° sea view, heated infinity pool, sleeps 9 provides accommodation, featuring Guest Services, Kitchen, View, among other amenities. This Villa features Guest Services, Kitchen, View, to make your stay a comfortable one.
Luxury estate, 180° sea view, heated infinity pool, sleeps 9 has 5 Bedrooms , 4 Bathrooms, and max occupancy of 10 people. The minimum rental for this property is 1 nights, but this can change depending on the season you plan on staying. Previous guests have given good rated it, and VRBO labeled it a top-rated Villa because of the excellent services rendered by the owner or manager of this Villa, and has consistently provided great experiences for their guests. Most families or guests that use it recommend it to their friends and some of them are repeat guests. Villa has a friendly neighborhood, and the Theoule-Superieur has interesting places to visit. If you want to learn more about the Villa in Theoule-Superieur, such as places to visit and things to do nearby, you can check below to learn more.
Amenities
Facility Overview
-
Air conditioning
-
Heating
-
Bidet
-
Toilet paper
-
Bathtub or shower
-
Hair dryer
-
Towels provided
-
4 bathrooms
-
Soap
-
Bed sheets provided
-
5 bedrooms
-
Dining table
-
Breakfast available for a fee
-
Living room
-
Fireplace
-
Dishwasher
-
Ice maker
-
Oven
-
Kitchen island
-
Refrigerator
-
Stovetop
-
Spices
-
Microwave
-
Coffee/tea maker
-
Near coin laundry
-
Washing machine and dryer
-
Near the beach
-
Limited onsite parking (max 3 spaces)
-
Limo/town car service
-
Onsite parking
-
Car required
-
No pets allowed
-
Smoke-free property
-
Basketball nearby
-
Horse riding nearby
-
Winery tours nearby
-
Golfing on site
-
Snorkeling nearby
-
Water park
-
Golf privileges
-
Fitness facilities nearby
-
Cycling nearby
-
Jet skiing nearby
-
Water tubing nearby
-
Windsurfing nearby
-
Hunting nearby
-
Arcade/game room
-
Stereo
-
Games
-
Video games
-
Music library
-
Smart TV with cable/satellite service
-
Unit size: 3200 sq ft (297 sq m)
-
English
-
French
-
In the mountains
-
Near a hospital
-
Near the ocean
-
Near the bay
-
In a village
-
Near the sea
-
Near outlet shopping
-
Iron/ironing board
-
Concierge services
-
Housekeeping (on request)
-
Safe
-
Chef
-
Free WiFi
-
Garden
-
Outdoor furniture
-
Barbecue grill
-
Patio
-
Fire extinguisher
-
Deadbolt lock
-
Carbon monoxide detector not reported (host has not indicated whether there is a carbon monoxide detector on the property; consider bringing a portable detector)
-
First aid kit
-
Smoke detector installed (host has indicated there is a smoke detector on the property)
-
Private pool
-
Heated pool
-
Outdoor pool
Policies
Extra-person charges may apply and vary depending on property policy government-issued photo identification and a credit card, debit card, or cash deposit may be required at check-in for incidental charges host has indicated there is a smoke detector on the property host has not indicated whether there is a carbon monoxide detector on the property; consider bringing a portable detector with you on the trip parties and events (including family gatherings, birthday parties and weddings) are allowed on site; maximum attendees: 60 property registration number 8508249470012 safety features at this property include a fire extinguisher, a first aid kit, and a deadbolt lock special requests are subject to availability upon check-in and may incur additional charges; special requests cannot be guaranteed this property is managed through our partner, vrbo. you will receive an email from vrbo with a link to a vrbo account, where you can change or cancel your reservation